


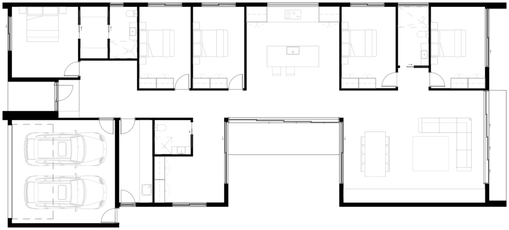
300m2
40m
264m2
13m
14m
28.9m
Features:
* Dimensions indicative only and subject to change.
| Min block width | 14m |
| Min block depth | 40m |
Room dimensions
|
Double garage |
6.00 x 6.00m |
|
Study |
6.50 x 3.20m |
|
Dining & Living |
8.30 x 6.40m |
|
Master Bed |
3.90 x 4.20m |
|
Bedroom 2 |
3.00 x 4.70m |
|
Bedroom 3 |
3.00 x 4.70m |
|
Bedroom 4 |
3.20 x 4.70m |
|
Bedroom 5 |
3.20 x 4.70m |

Standard floorplan and specification shown. Floorplan may not reflect developer guidelines
VISIT
Discover our central CBD office for convenient access to explore your design and renovation needs.
CONTACT
Get in touch with us to discuss your design and renovation requirements with our expert team.
DISCOVER
Explore our range of expertise and find out how we can assist you in creating your dream space.